Renet utilizează fişiere de tip cookie pentru a personaliza și îmbunătăți experiența ta pe Website-ul nostru. Înainte de a continua navigarea pe Website-ul nostru te rugăm să aloci timpul necesar pentru a citi și înțelege conținutul Politicii de Cookie. Prin continuarea navigării pe Website-ul nostru confirmi acceptarea utilizării fişierelor de tip cookie conform Politicii de Cookie.

Spatiu de birouri | Vitan Center | Utilitati incluse

Bucuresti, Vitan

450€ + TVA
ID: PB19713 9
Reprezentare exclusiva de inchiriat
  • ID:PB19713
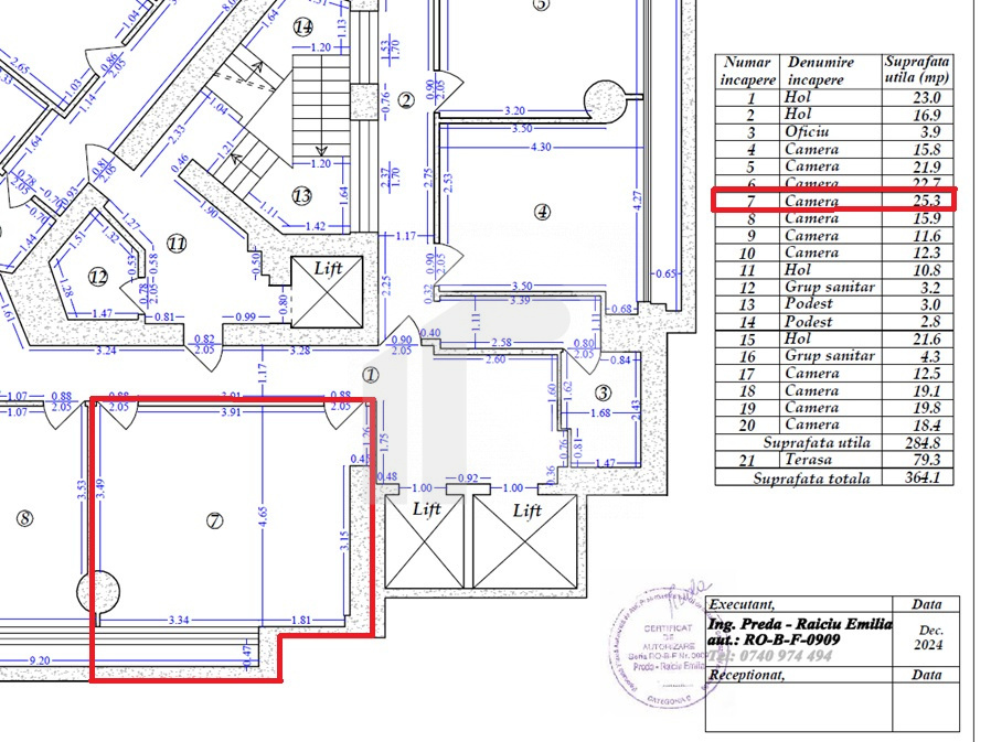
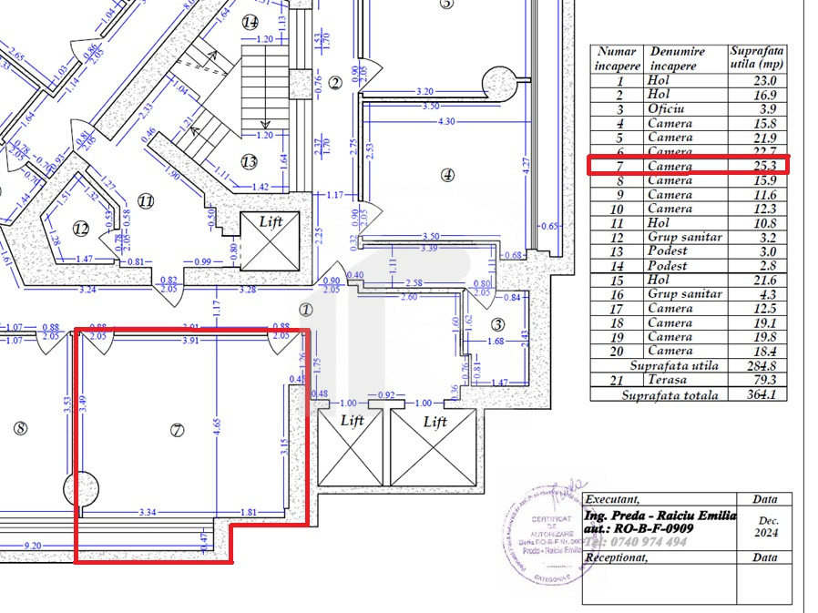
  • Nr. camere:1
  • S. utila:25.30 mp
  • Comp.:Open space
  • Clasificare:A
  • Etaj:Etaj 7
  • Regim inaltime:S+P+7
  • Nr. bai:1
  • An constructie:2007
Utilitati
  • Utilitati generale: Curent, Apa, CATV, Fibra optica
  • Sistem incalzire: Centrala imobil
  • Climatizare: Aer conditionat
Finisaje
  • Izolatii exterior: Exterior
  • Pereti: Vopsea lavabila
  • Podele: Gresie
  • Stare: Finisat
Dotari
  • Contorizare: Apometre
  • Mobilat: Nemobilat
  • Imobil: Lift

Cladirea de birouri Vitan Center se află în Piața Vitan, la doar 500m de Piața Alba Iulia și București Mall. Accesul este facil din Calea Vitan și din Calea Dudești.

Cladirea dispune de fațadă vitrată, recepție, pază 24/24, supraveghere video, sistem antiincendiu, pardoseală flotantă, sistem de climatizare, , termopane Schuco și 3 lifturi. Fiecare spațiu de birouri este foarte bine luminat datorită geamurilor vitrate.

Spațiul de birouri  se află la etajul 7, dispune de o cameră având suprafața utilă de 25.3 mp la care se adaugă spațiile comune. Spațiul are acces la un grup sanitar comun.

În prețul chiriei sunt incluse: încălzirea și răcirea spațiului și a suprafețelor comune, apa, colectarea gunoiului, dezinsecția, deratizarea, curățenia, paza si recepția, excepție fiind doar curentul având un cost fix de 250 lei+tva.

Pretabil pentru orice tip de activitate de birou.

La pretul afisat se adauga TVA.

Pentru orice informații suplimentare sau vizionări mă puteți contacta!

Oferta importata de la agentie colaboratoare

Gabriel Stancu

Agent Imobiliar REALTOR®
Printeaza