





























































Vă propun spre vânzare o vilă individuală cu 5 camere, situată în Buftea, strada Anemonelor nr.26, într-un ansamblu rezidențial liniștit, ideal pentru familiile care își doresc confort, intimitate și acces rapid către București.
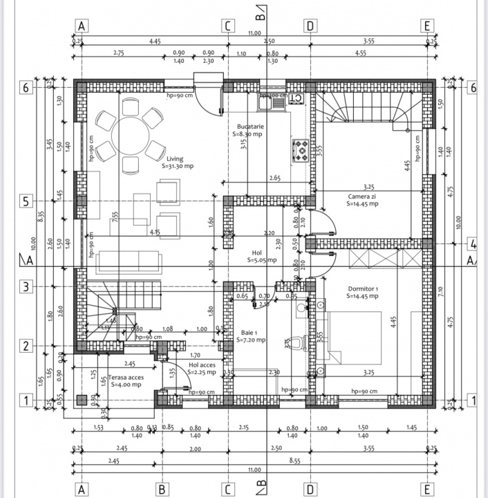
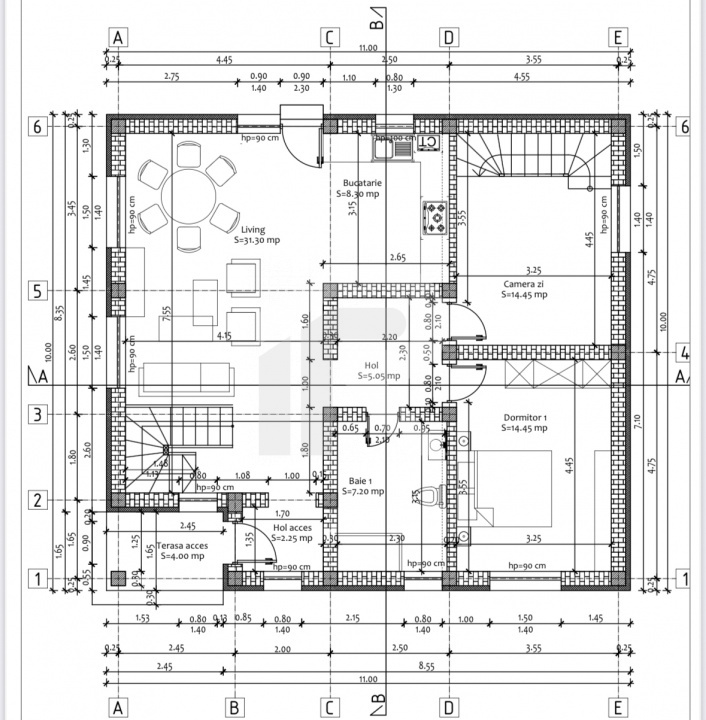
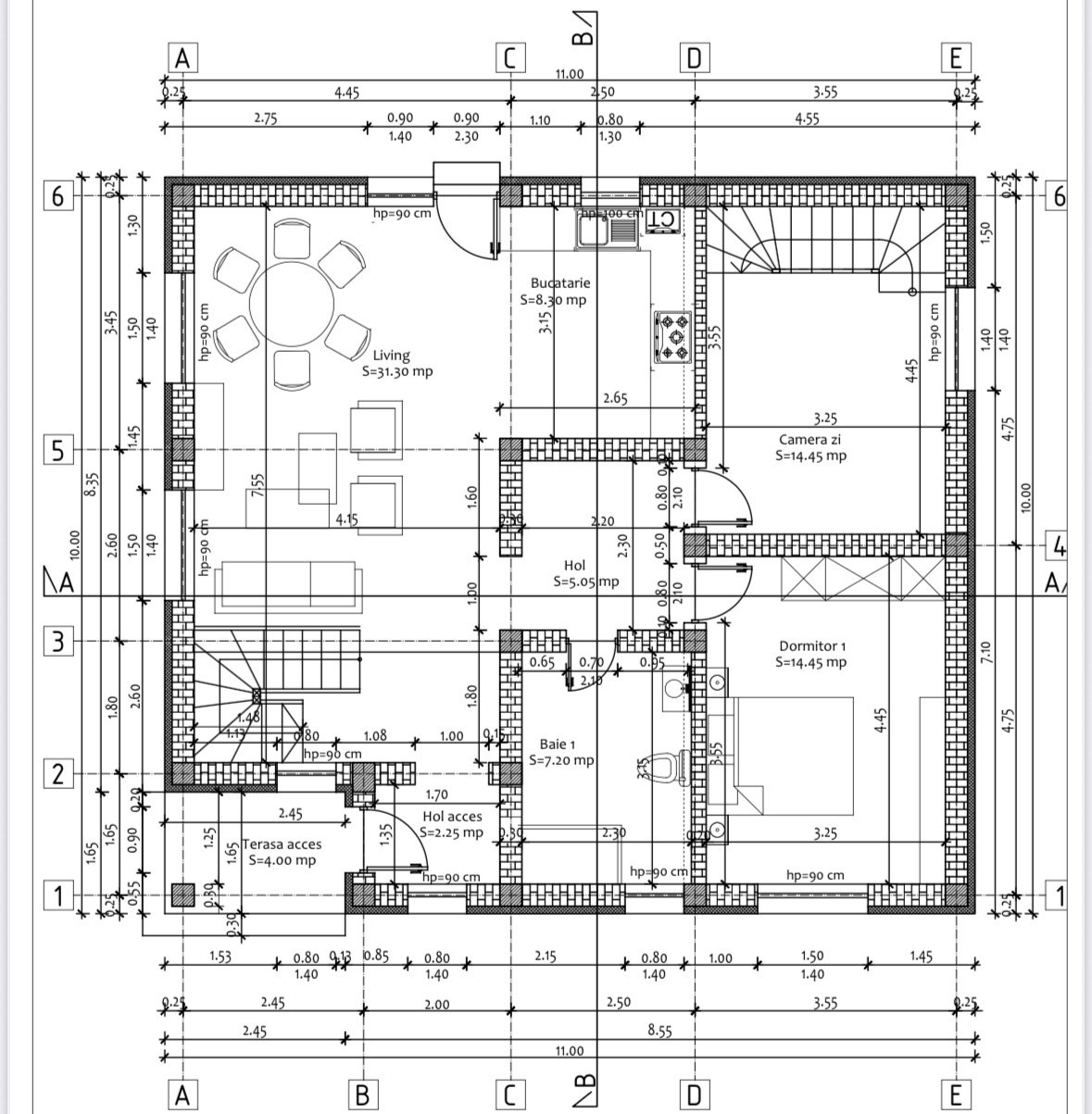
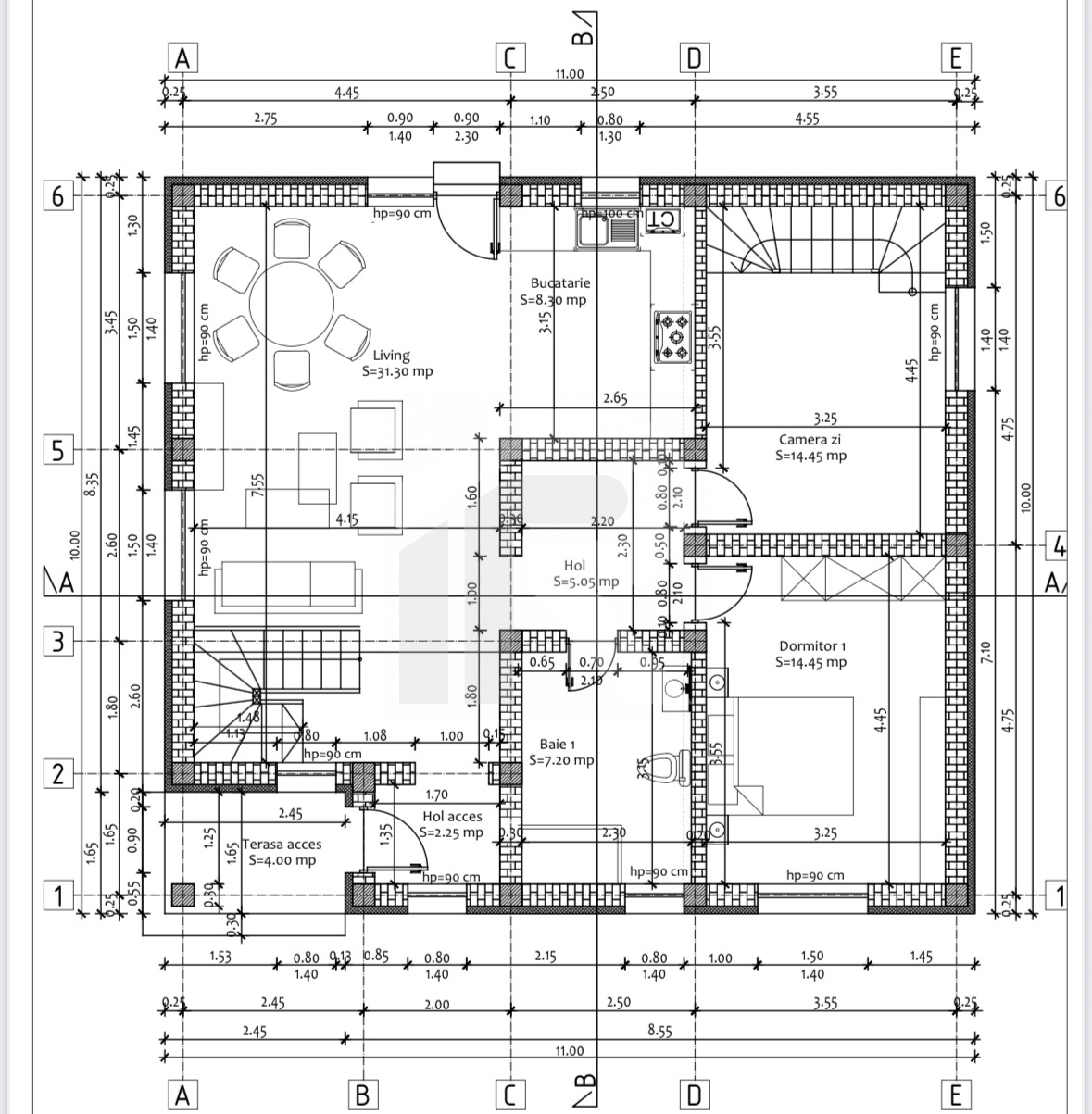
Proprietatea se remarcă printr-o compartimentare eficientă și spații generoase, fiind complet mobilată și utilată, pregătită pentru mutare imediată. Interiorul este luminos și aerisit, datorită suprafețelor vitrate ample, care creează o atmosferă plăcută în fiecare încăpere.
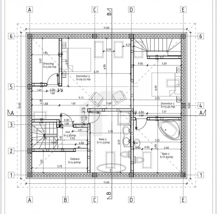
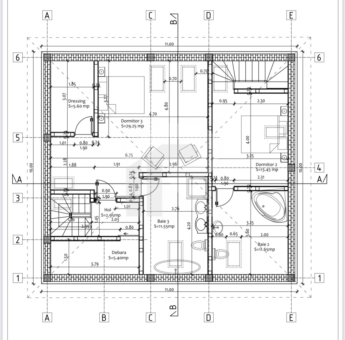
Zona de zi este gândită pentru relaxare și socializare, cu living spațios și acces către exterior, iar bucătăria este complet echipată, oferind funcționalitate și confort. Dormitoarele sunt bine proporționate, ideale atât pentru familie, cât și pentru birou sau cameră de oaspeți.
Unul dintre principalele avantaje ale proprietății este curtea proprie, în suprafață de aproximativ 330 mp, perfectă pentru petrecerea timpului liber, amenajarea unei zone de relaxare sau pentru familii cu copii.
📍 Amplasarea în Buftea oferă un echilibru ideal între liniștea unei zone rezidențiale și accesul facil către oraș, fiind o alegere potrivită atât pentru locuire permanentă, cât și ca investiție.