





















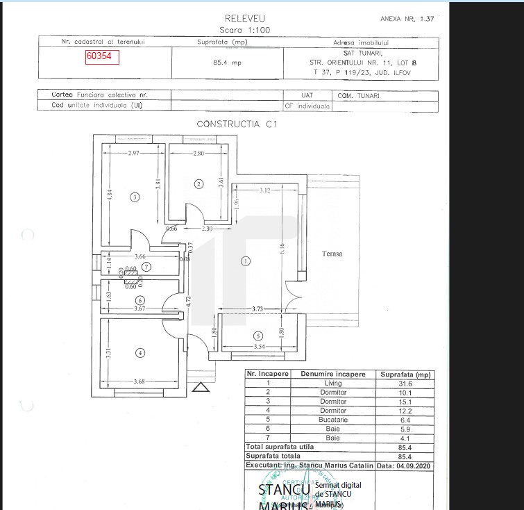
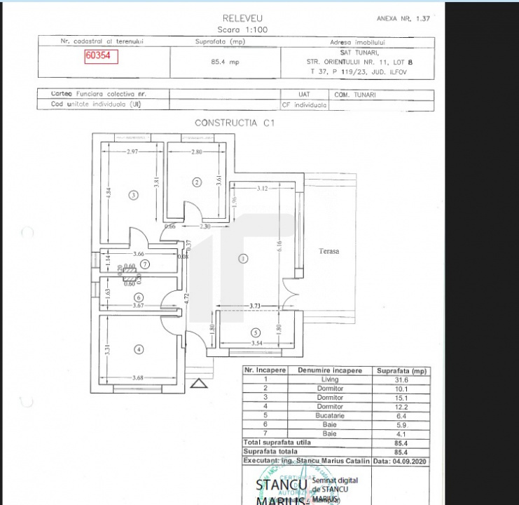
Casa individuala se afla in complexul de 21 de case denumit Primaverii Park, pe strada Orientului, nr. 11 din Tunari. Dispune de 2 locuri de parcare.
Dispune de 4 camere la care se adauga o terasa inchisa in sticla. Incalzirea se realizeaza prin pardoseala cu ajutorul unei centrale termice prin condensare.
Complexul dispune de fosa septica de inalta performanta si put propriu, ambele autorizate de Apele Române, ceea ce garantează o infrastructura sigura si complet functionala.
In aceasta oferta nu sunt incluse mobila si electrocasnicele, dar se pot achizitiona separat. Nu se aplica TVA.
Pentru orice detalii ma puteti contacta!