
















Vă prezentăm spre vânzare o casă individuală cu 4 camere situată langa padure în comuna Clinceni, satul Ordoreanu, str. Pescărușului nr. 11A.
Zonă liniștită și în plină dezvoltare, preferată de familiile care își doresc un stil de viață relaxat, aproape de natură, dar cu acces rapid către București.
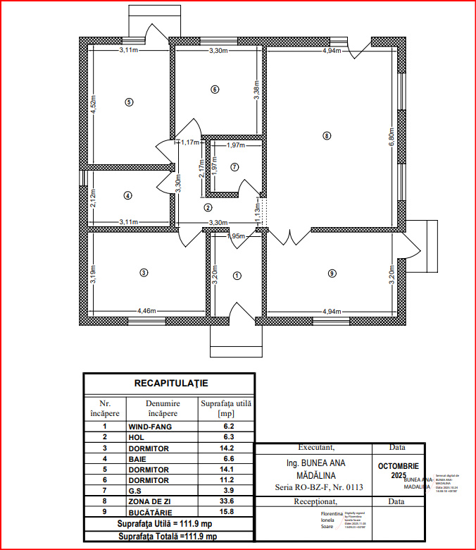
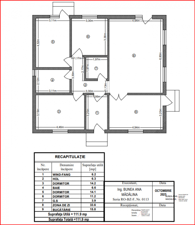
Proprietatea oferă un echilibru ideal între confortul unei locuințe moderne și avantajele unei curți proprii, fiind potrivită atât pentru locuire permanentă, cât și pentru investiție. Casa este bine compartimentată, cu spații luminoase și funcționale, gândite pentru a oferi confort și intimitate întregii familii.
Compartimentarea include un living generos, bucătărie, dormitoare spațioase și 2 băi, toate proiectate pentru a crea un ambient plăcut și practic.
Proprietatea se vinde la stadiul actual, necesitând lucrări de finalizare, oferindu-vă posibilitatea de a o personaliza după propriul gust.
Această proprietate reprezintă o oportunitate excelentă pentru cei care caută o locuință spațioasă, într-o comunitate în dezvoltare, aproape de oraș, dar departe de agitația urbană.