







Vă prezentăm un apartament nou în zona Nerva Traian, Sector 3, la doar 500m de stația de metrou Timpuri Noi. Acest apartament este ideal pentru cei care doresc să beneficieze de toate facilitățile urbane și de un acces rapid la transportul în comun.
Detalii Apartament:
Pret 310.000 euro TVA inclus
- Localizare: Nerva Traian aproape de stația de metrou Timpuri Noi, oferind acces rapid și convenabil către toate zonele orașului.
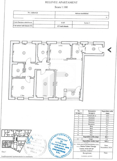
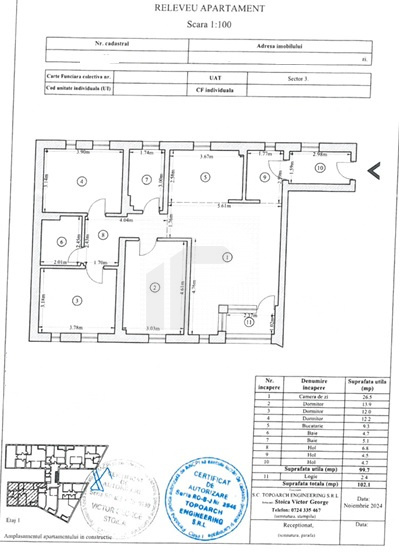
- Etaj: Apartamentul este situat la etajul 1 al unui bloc finalizat în 2025.
- Regim de înălțime: Subsol + Demisol + Parter + 6 etaje.-
Loc de parcare la subsol la pretul de 15.000 euro.
Nu ratați ocazia de a achiziționa acest apartament confortabil și bine poziționat!
Contactați-ne pentru mai multe detalii și pentru a programa o vizionare.