















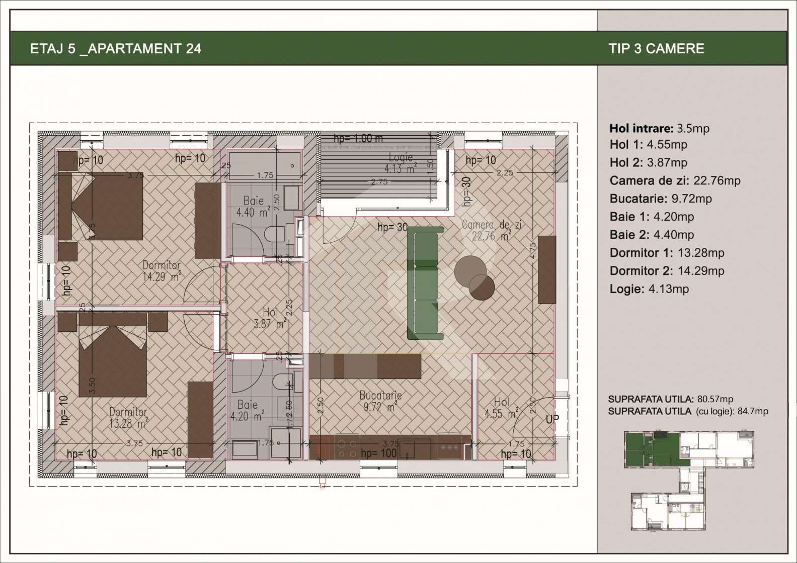
Vă prezentăm un apartament de 3 camere, nou cu finalizare 31.07.2025 în zona Nerva Traian, Sector 3, la doar 500m de stația de metrou Timpuri Noi. Acest apartament este ideal pentru cei care doresc să beneficieze de toate facilitățile urbane și de un acces rapid la transportul în comun. Detalii Apartament:- Localizare: Nerva Traian aproape de stația de metrou Timpuri Noi, oferind acces rapid și convenabil către toate zonele orașului.- Etaj: Apartamentul este situat la etajul 5 al unui bloc în construcție, cu finalizare în 2025.- Regim de înălțime: Demisol + Parter + 6 etaje .Nu ratați ocazia de a achiziționa acest apartament confortabil și bine poziționat! Contactați-ne pentru mai multe detalii și pentru a programa o vizionare.Pozele / imaginile sunt schitele apartamentelor cu 3 camere disponibile in acest bloc, in prima poza este apartamentul 24 , apartament descris in anunt , pentru restul apartamentelor se aplica alt pret in functie de suprafata utila , mai multe relatii la tefon !!!