Renet utilizează fişiere de tip cookie pentru a personaliza și îmbunătăți experiența ta pe Website-ul nostru. Înainte de a continua navigarea pe Website-ul nostru te rugăm să aloci timpul necesar pentru a citi și înțelege conținutul Politicii de Cookie. Prin continuarea navigării pe Website-ul nostru confirmi acceptarea utilizării fişierelor de tip cookie conform Politicii de Cookie.

Apartament 2 camere , Nerva Traian - Metrou Timpuri Noi

Bucuresti, Nerva Traian

160.000€
ID: GS20839 1 Comision: 0%
TOP 0% comision Reprezentare exclusiva de vanzare
  • ID:GS20839
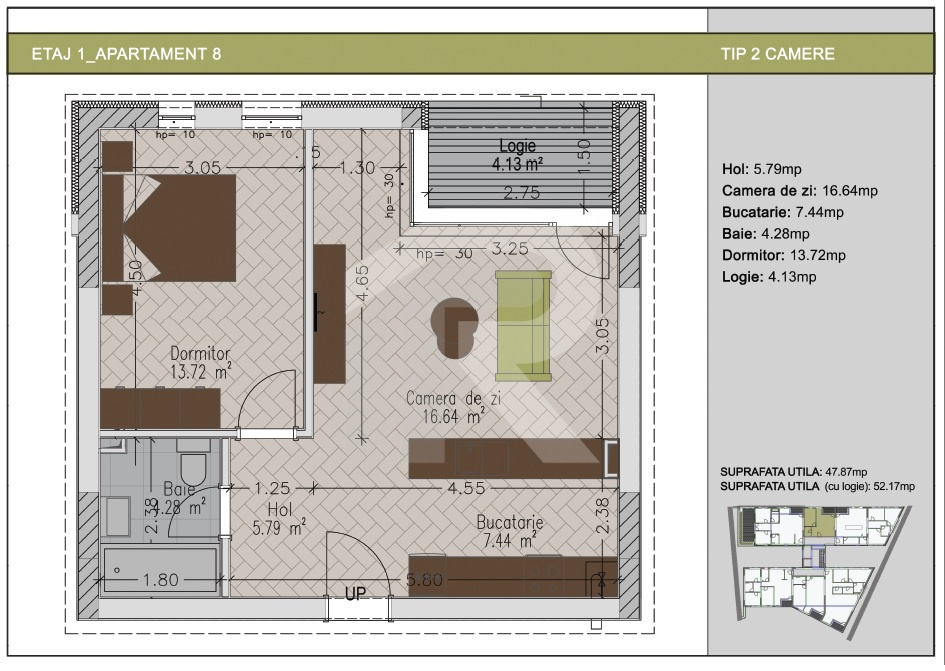
  • Nr. camere:2
  • S. utila:51.00 mp
  • S. utila totala:55.00 mp
  • S. construita:61.00 mp
  • Comp.:Decomandat
  • Confort:1
  • Etaj:Etaj 1
  • Regim inaltime:P+6
  • Nr. bucatarii:1
  • Nr. bai:1
  • Nr. balcoane:1
  • S balcoane:4.00 mp
  • Nr. garaje:1
  • An constructie:2025
  • Structura:Beton
  • Tip imobil:Bloc
  • Orientare:Sud-Est
  • Clasa energetica:A
  • Consum specific:124
  • Indice emisii:24
  • Pret garaj:15.000€
Utilitati
  • Utilitati generale: Curent, Apa, Canalizare, Gaz, Telefon, Acces internet, Fibra optica
  • Sistem incalzire: Centrala proprie, Incalzire pardoseala
Finisaje
  • Izolatii exterior: Bloc izolat termic
  • Pereti: Vopsea lavabila, Faianta, Marmura
  • Podele: Parchet, Gresie, Marmura
  • Ferestre: PVC
  • Usa intrare: Metal
  • Usa interior: Lemn
Dotari
  • Contorizare: Apometre, Contor gaz
  • Imobil: Videointerfon, Lift

Va prezentam un apartament de 2 camere cu finisaje moderne premium, in bloc finalizat in 2025, perfect pentru cupluri tinere sau ca investitie inteligenta in cea mai dinamica zona a Bucurestiului.

Apartamentul impresioneaza prin atentia la detalii si materialele selectate: Parchet modern deschis la culoare in toate camerele, Gresie si faianta premium in baie (tonuri elegante bej-gri), Ferestre mari cu profile gri Slamander cu geam tripan (tamplarie moderna, cu izolare termica si fonica superioara), Usi interioare din lemn de calitate, Instalatii electrice si sanitare noi, cu contoare individuale, Incalzire in pardoseala pentru confort maxim, videinterfon, Baia este echipata complet: cada moderna, lavoar cu mobilier alb contemporan, toaleta suspendata, accesorii cromate - totul NOU si gata de utilizat.
 
Lumina naturala extraordinara - ferestrele generoase pe multiple orientari asigura luminozitate pe tot parcursul zilei, creand un ambient placut si sanatos.
 

La doar cateva minute de Metrou Timpuri Noi, 
Acces rapid catre centrul Bucurestiului, 
Zone verzi si parcuri in apropiere, 
Scoli, gradinite, farmacii la distanta de mers pe jos, 
Magazine, restaurante, cafenele, 
Transport in comun excelent, 
Zona linistita, rezidentiala, dar conectata urban, 

Pret competitiv: 160.000 EUR (tva inclus)- investitie sigura intr-un imobil nou, cu acte la zi si fara vicii ascunse.